Квартира, студия, 26 м², 12/14
Новосибирская область, Новосибирск, метро Речной вокзал, ул Заречная, 21
| 15 500 | рублей | |
| + Залог 1 месяц | ||
Пожалуйста, скажите, что нашли это объявление на МаксРиэлт
1 / 5
Описание
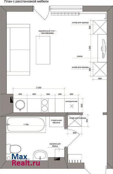
Квартира новая. Стиралка, ТV, холодильник, кондиционер. Просторная и светлая комната.
Коммуналка включена в аренду. До М. Студенческая маршрутка 15 минут.
Регистрация бесплатно. Предпочтение семейным с детьми. Домашние животные можно.
Коммуналка включена в аренду. До М. Студенческая маршрутка 15 минут.
Регистрация бесплатно. Предпочтение семейным с детьми. Домашние животные можно.
Параметры объекта
Тип дома: Кирпичный
Кол-во комнат: Студия
Этаж: 12
Этажей в доме: 14
Общая площадь: 26 м2
Жилая площадь: 16 м2
Площадь кухни: 10 м2
Расположение на карте
Отзывы
Пока еще никто не оставил отзывОставить отзыв
Хотите сотрудничать и получать заявки? Свяжитесь с нами.
Другие объекты
Жалоба на объявление
Отправить
Принято.
+ Добавить пост
Рекомендуем
За сколько можно снять квартиру в Новосибирске у собственника? 13 Апреля 2020 Авито недвижимость Новосибирск отзывы 26 Апреля 2020 Аренда квартиры на авито в Новосибирске на длительный срок без посредника 21 Января 2020 Совместная аренда квартир в Новосибирске 29 Января 2020 Аренда квартир в Новосибирске с правом выкупа 2 Февраля 2020 Что следовало бы исправить в Новосибирске, чтобы жить могли по-людски? 10 Марта 2020 Дешёвый ночлег Новосибирск 25 Января 2020 Авито знакомства 19 Февраля 2023 Новосибирск- отзывы переехавших 2 Июня 2020 Где недорого купить двери в Новосибирске? 23 Мая 2020 Матрешкин двор 3 Мая 2023 Дарья Герлейн. Риэлтор. Профессия и бизнес 5 Марта 2020 Матрешкин двор Новосибирск 1 Июня 2023 Хостел или посуточные квартиры: что перспективнее? 30 Сентября 2019 Соседи-стукачи и аренда квартир 27 Сентября 2019 Почему риэлторы так много берут за свою работу? 24 Сентября 2019 Евгений 9773334216 1 Декабря 2020 Как я искала квартиру на авито 29 Ноября 2019 У риэлторов по аренде жилья стало меньше работы 27 Сентября 2019 О беспроводных системах видеонаблюдения для объектов недвижимости 1 Июля 2020 Помогите советом. Ищу нормальную новостройку в Москве 20 Мая 2020 Самые популярные дома в строительстве 2020 года 9 Апреля 2021 Инвестиции в земельные участки 3 Октября 2019 Стоит ли сейчас продавать квартиру 9 Октября 2020 Реальная себестоимость квартир в многоэтажном многоквартирном доме 27 Сентября 2019 Когда выгонять арендаторов. Совет опытного арендодателя 4 Октября 2019Деловая женщина ищет помощника мужчину на работу









