Торговая площадь, 25 м²
Чувашия, Новочебоксарск, Западный район, Чувашская Республика, Пионерская улица, 18к1
| 7 500 | рублей / за всё | |
| Без залога | ||
Пожалуйста, скажите, что нашли это объявление на МаксРиэлт
1 / 5
Описание
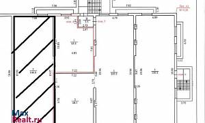
В торговом центре "Точка", центральный вход, цокольный этаж, перед салоном штор, есть торговая площадь 25 кв.м.
Время работы торгового цента с 9 до 19 ч.
Стоимость 300 руб/кв. м., включая коммунальные платежи.
В стоимость также включена охранно-пожарная сигнализация, интернет, уборка помещения.
Есть соседний цоколь, 140 кв. м., под торговую площадь. Рядом рыболовный магазин.
Время работы торгового цента с 9 до 19 ч.
Стоимость 300 руб/кв. м., включая коммунальные платежи.
В стоимость также включена охранно-пожарная сигнализация, интернет, уборка помещения.
Есть соседний цоколь, 140 кв. м., под торговую площадь. Рядом рыболовный магазин.
Параметры объекта
Площадь: 25 м2
Расположение на карте
Отзывы
Пока еще никто не оставил отзывОставить отзыв
Хотите сотрудничать и получать заявки? Свяжитесь с нами.
Другие объекты
Жалоба на объявление
Отправить
Принято.
+ Добавить пост






