Земля промназначения, 15 сот.
Марий Эл, Йошкар-Ола, Красноармейская слобода
| 4 500 000 | рублей |
Пожалуйста, скажите, что нашли это объявление на МаксРиэлт
1 / 4
Описание
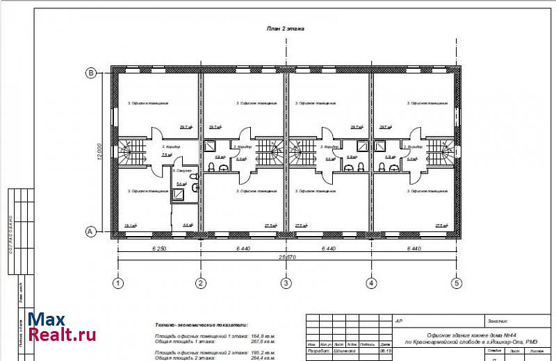
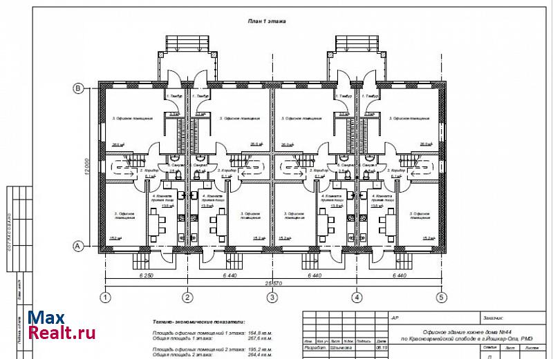
Продается земельный участок в центре города Йошкар-Ола на Красноармейской слободе (рядом с Вознесенским парком). Земля в собственности. Получено ГПЗУ, технические условия на благоустройство и отвод поверхностных вод. Имеется пред проектное предложение на размещение четырех прилегающих стенами помещений (по принципу таунхаусов) со своей входной группой. Помещения могут использоваться для магазинов, представительств, офисов, проживания. По участку проходит водопровод, канализация и электричество. Рядом с участком проходит газ. Территория вся защебенена. Возможен торг или обмен на квартиры.
Параметры объекта
Площадь участка: 15 сот.
Удалённость от города: В черте города
Расположение на карте
Отзывы
Пока еще никто не оставил отзывОставить отзыв
Хотите сотрудничать и получать заявки? Свяжитесь с нами.
Другие объекты
Жалоба на объявление
Отправить
Принято.
+ Добавить пост








