Земля поселений(ИЖС), 10 сот.
Самарская область, Новосемейкино, Поселок Новосемейкино, Загородная участок №3

800 000 | рублей |
Пожалуйста, скажите, что нашли это объявление на МаксРиэлт

1 / 5
Описание
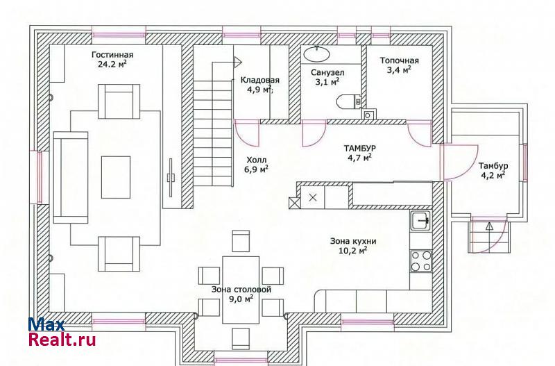
Продам участок 20 на 50м (Собственник). Рядом асфальтированная дорога, лес. От ИКЕА 5 минут езды. На участке залит монолитный фундамент 11 на 8м. Под фундамент имеется готовый проект дома
Параметры объекта
Площадь участка: 10 сот.
Удалённость от города: В черте города
Расположение на карте
Отзывы
Пока еще никто не оставил отзывОставить отзыв
Хотите сотрудничать и получать заявки? Свяжитесь с нами.
Другие объекты
Жалоба на объявление
Отправить
Принято.
+ Добавить пост