Помещение свободного назначения, 115.3 м²
Новосибирская область, Новосибирск, метро Гагаринская, Деповская улица, 36
| 3 500 000 | рублей / за всё |
Пожалуйста, скажите, что нашли это объявление на МаксРиэлт
1 / 4
Описание
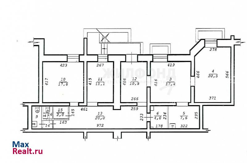
Продаётся нежилое помещение в отличном состоянии. Цоколь с отдельным входом. Окна в приямках. Хороший ремонт. Всего 6 кабинетов: 3 кабинета с окном, 3 кабинета без окна, коридор, 2 санузла. Современный дом. Огороженная территория дома со шлагбаумом. Удобное месторасположение, 5 минут пешком от метро Гагаринская.
Сдано в аренду под ателье уже 10 лет. Ежемесячная арендная плата составляет 45000 руб. Срок окупаемости вложений 6,4 года.
Сдано в аренду под ателье уже 10 лет. Ежемесячная арендная плата составляет 45000 руб. Срок окупаемости вложений 6,4 года.
Параметры объекта
Площадь: 115.3 м2
Расположение на карте
Отзывы
Пока еще никто не оставил отзывОставить отзыв
Хотите сотрудничать и получать заявки? Свяжитесь с нами.
Другие объекты
Жалоба на объявление
Отправить
Принято.
+ Добавить пост









