Земля поселений(ИЖС), 5 сот.
Краснодарский край, Армавир, ул Урожайная

1 200 000 | рублей |
Пожалуйста, скажите, что нашли это объявление на МаксРиэлт

1 / 5
Описание
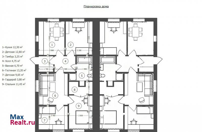
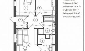
Продаю или обменяю на квартиру. На участке залит фундамент 14/14 для строительства дома на два хозяина. В первом слое использовалась арматура диаметром 12 мм, во второй выравнивающий слой использовалась 10 мм. Цоколь выложен качественным блоком. На фото процесс строительства и примерная планировка дома составленная профессионалами. По желанию можно и что то другое. На участке имеется вода, колодец для хранения воды, электричество со счетчиком, газ по меже. В собственности с 2011 года. Улица плотно заселена, освещена.
Параметры объекта
Площадь участка: 5 сот.
Удалённость от города: В черте города
Расположение на карте
Отзывы
Пока еще никто не оставил отзывОставить отзыв
Хотите сотрудничать и получать заявки? Свяжитесь с нами.
Другие объекты
Жалоба на объявление
Отправить
Принято.
+ Добавить пост