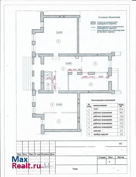
Помещение свободного назначения, 147 м²
Псковская область, Псков, Центр район, Россия, улица Карла Маркса, 41
| 7 800 000 | рублей / за всё |
Пожалуйста, скажите, что нашли это объявление на МаксРиэлт
1 / 5
Описание
Продам помещение с отдельным парадным входом с улицы Гоголя и входом со двора.Санузел,складское помещение.Вневедомственная охрана.Либо сдам на длительный срок.Я собственник.
Параметры объекта
Площадь: 147 м2
Расположение на карте
Отзывы
Пока еще никто не оставил отзывОставить отзыв
Хотите сотрудничать и получать заявки? Свяжитесь с нами.
Другие объекты
Жалоба на объявление
Отправить
Принято.
+ Добавить пост









