Помещение свободного назначения, 115 м²
Красноярский край, Красноярск, Железнодорожный район, Вокзальная улица, 12

4 700 000 | рублей / за всё |
Пожалуйста, скажите, что нашли это объявление на МаксРиэлт

1 / 1
Описание
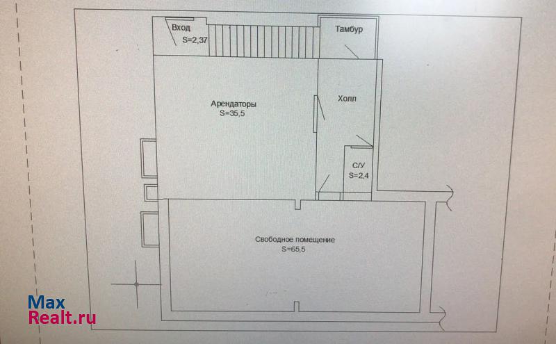
Продам нежилое 115 м2 цоколь(тёплый)
В данный момент в помещении есть арендаторы 35 м2
Марина(собственник)
Свободное помещение требует ремонта.
Торг уместен.
В данный момент в помещении есть арендаторы 35 м2
Марина(собственник)
Свободное помещение требует ремонта.
Торг уместен.
Параметры объекта
Площадь: 115 м2
Расположение на карте
Отзывы
Пока еще никто не оставил отзывОставить отзыв
Хотите сотрудничать и получать заявки? Свяжитесь с нами.
Другие объекты
Жалоба на объявление
Отправить
Принято.
+ Добавить пост