Офис, 250 м²
Свердловская область, Краснотурьинск, улица Свердлова, 1

3 500 000 | рублей / за всё |
Пожалуйста, скажите, что нашли это объявление на МаксРиэлт

1 / 3
Описание
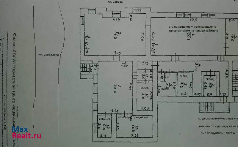
Мечтаете работать с видом на красивейшую городскую набережную и иметь возможность в обеденное время прогуляться до фонтана? Тогда у нас есть супер предложение – нежилое помещение площадью 250 кв.м. на улице Свердлова, 1 (цокольный этаж). Здесь есть все для успешного бизнеса: огромный пешеходный трафик на плотину, соединяющую город с Заречным районом; парковка; в шаговой доступности – городская набережная, где всегда многолюдно. В помещении сделан ремонт. Есть склады, два больших торговых зала, запасной выход, который может служить отдельным входом для загрузки товара.
Параметры объекта
Площадь: 250 м2
Класс здания: C
Расположение на карте
Отзывы
Пока еще никто не оставил отзывОставить отзыв
Хотите сотрудничать и получать заявки? Свяжитесь с нами.
Другие объекты
Жалоба на объявление
Отправить
Принято.
+ Добавить пост