Квартира, 2-комнатная, 41.6 м², 5/5
Новгородская область, Великий Новгород, Торговая сторона район, Донецкий район, Хутынская улица, 8
| 1 500 000 | рублей |
Пожалуйста, скажите, что нашли это объявление на МаксРиэлт
1 / 4
Описание
Продам 2-хкомнатную квартиру, ул. Хутынская д. 8.
Уютная, светлая, тихая.
В пяти минутах ходьбы парк, чуть дальше стадион, река, набережная.
Прекрасная транспортная доступность.
Квартира требует ремонта - посудите сами по фото. Увы, нет балкона, но есть маленький естественный холодильник в кухне под окном и полка за окном.
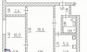
За счёт кладовки и второго окна в комнате (см. план) возможна перепланировка в 3-хкомнатную квартиру с двумя изолированными комнатами.
Общая площадь 41,6 кв. м. (кухня: 5.6; комнаты 18,6 и 10.0, кладовки 2,4, с/у 3,0). Комнаты смежные, санузел совмещенный. Новые газовая колонка, плита, входная дверь.
Один взрослый собственник, без обременений. Возможна ипотека.
Уютная, светлая, тихая.
В пяти минутах ходьбы парк, чуть дальше стадион, река, набережная.
Прекрасная транспортная доступность.
Квартира требует ремонта - посудите сами по фото. Увы, нет балкона, но есть маленький естественный холодильник в кухне под окном и полка за окном.
За счёт кладовки и второго окна в комнате (см. план) возможна перепланировка в 3-хкомнатную квартиру с двумя изолированными комнатами.
Общая площадь 41,6 кв. м. (кухня: 5.6; комнаты 18,6 и 10.0, кладовки 2,4, с/у 3,0). Комнаты смежные, санузел совмещенный. Новые газовая колонка, плита, входная дверь.
Один взрослый собственник, без обременений. Возможна ипотека.
Параметры объекта
Тип дома: Кирпичный
Кол-во комнат: 2
Этаж: 5
Этажей в доме: 5
Общая площадь: 41.6 м2
Жилая площадь: 28.6 м2
Площадь кухни: 5.6 м2
Расположение на карте
Отзывы
Пока еще никто не оставил отзывОставить отзыв
Хотите сотрудничать и получать заявки? Свяжитесь с нами.
Другие объекты
Жалоба на объявление
Отправить
Принято.
+ Добавить пост
Рекомендуем
Источник клиентов на квартиры посуточно в Великом Новгороде 22 Января 2020 Авито-недвижимость Великий Новгород отзывы 3 Апреля 2020 Лучший застройщик Великого Новгорода 6 Декабря 2022 Популярные сайты по аренде квартир в Великом Новгороде 17 Января 2020 Великий Новгород- отзывы переехавших 2 Июня 2020 Аренда жилья в Великом Новгороде с правом последующего выкупа 25 Января 2020 Срочный выкуп квартир Великий Новгород 28 Марта 2020 Подслушано Великий Новгород, сплетни 10 Мая 2020 Снять квартиру на авито в Великом Новгороде на длительный срок от собственника 12 Февраля 2020 Совместная аренда квартир Великий Новгород 12 Апреля 2020 Евгений 9773334216 1 Декабря 2020 Мошейники ИП Величко С.Б. улица Мира 54,Краснодар 23 Мая 2021 Не снимайте квартиру у Костяна 12 Марта 2020 О беспроводных системах видеонаблюдения для объектов недвижимости 1 Июля 2020 Как я искала квартиру на авито 29 Ноября 2019 Реальная себестоимость квартир в многоэтажном многоквартирном доме 27 Сентября 2019 Помогите советом. Ищу нормальную новостройку в Москве 20 Мая 2020 Самые популярные дома в строительстве 2020 года 9 Апреля 2021 Стоит ли сейчас продавать квартиру 9 Октября 2020 Срочно требуется модератор 5 Мая 2020Наш сайт - бесплатный. Подайте объявление продам или куплю квартиру в Великом Новгороде.









