Квартира в новостройке
Московская область, Лыткарино, улица Ленина, 12
| 4 000 000 | рублей |
Пожалуйста, скажите, что нашли это объявление на МаксРиэлт
1 / 4
Описание
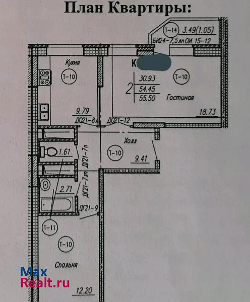
Продам квартиру в центре города, 18.09.2019 дом поставлен на кадастровый учет. Квартира не в ипотеке. Возможна перепланировка в евротрешку.
Параметры объекта
Застройщик: ООО «Славянское Подворье Л»
Тип дома: Монолитный
Кол-во комнат: 2
Этаж: 5
Этажей в доме: 17
Общая площадь: 58 м2
Жилая площадь: 32 м2
Площадь кухни: 10 м2
Отделка: Без отделки
Расположение на карте
Отзывы
Пока еще никто не оставил отзывОставить отзыв
Хотите сотрудничать и получать заявки? Свяжитесь с нами.
Другие объекты
Жалоба на объявление
Отправить
Принято.
+ Добавить пост









