Квартира в новостройке
Костромская область, Кострома, Центральный район, улица Энгельса
| 5 310 000 | рублей |
Пожалуйста, скажите, что нашли это объявление на МаксРиэлт
1 / 4
Описание
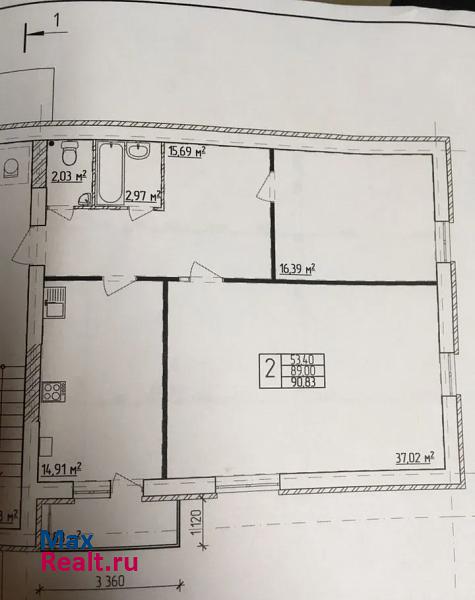
Продам квартиру в строящемся малоквартирном доме 60, 90 м2 , этаж 1-3, срок сдачи 4 кв 2020 г. АОГВ, закрытый двор.
Параметры объекта
Тип дома: Кирпичный
Кол-во комнат: 3
Этаж: 3
Этажей в доме: 3
Общая площадь: 90 м2
Площадь кухни: 14 м2
Отделка: Черновая
Расположение на карте
Отзывы
Пока еще никто не оставил отзывОставить отзыв
Хотите сотрудничать и получать заявки? Свяжитесь с нами.
Другие объекты
Жалоба на объявление
Отправить
Принято.
+ Добавить пост









