Квартира, 4-комнатная, 93 м², 6/7
Московская область, Красногорск, деревня Сабурово, Парковая улица, 23
| 7 950 000 | рублей |
Пожалуйста, скажите, что нашли это объявление на МаксРиэлт
1 / 5
Описание
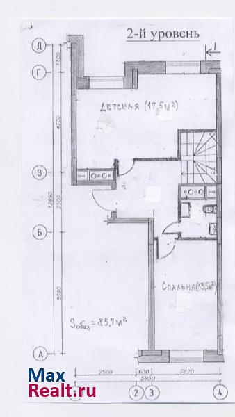
Срочно продается двухуровневая 4-х комнатная евроквартира на 6 и 7 этажах в сданном доме №19( вторая очередь строительства) Ж/К Пятницкое кварталы. Комплекс расположен в 12 км от метро "Пятницкое шоссе". в экологически чистой лесной зоне. Ключи получены и квартира поставлен на кадастровый учет. Квартира размещена на 2-х этажах.
Площадь квартиры 87,7кв.м. с пристроенными тамбурами на 2-х этажах 93 как.м. На шестом этаже расположены: прихожая, кухня-гостиная с лестницей на верхний этаж, ванная комната, спальня. На втором уровне: две спальни, туалет, гардеробная комната с выходом на 7 этаж. Остановка общественного транспорта в 200 м. В комплексе предусмотрена вся инфраструктура: действующий садик, автостоянка,планируется строительство школы, детского садика. В доме есть кладовки в подвале. В квартире выполнены работы под чистовую отделку:выолнены перегородки, разводка электрики и сантехники, штукатурные работы с устройством шумоизоляции, заливка пола с устройством гидрошумоизоляции, шпаклевка под обои, уложен ламинат . Смонтирована деревянная лестница на 2-ой уровень, облицованы керамической плиткой оба санузла. Квартира оформлена в собственность и согласованы все документы на перепланировку. Получен технический паспорт и акт ввода после перепланировки. Квартира после перепланировки площадью 87,7кв.м зарегистрирована в Росреестре.
Площадь квартиры 87,7кв.м. с пристроенными тамбурами на 2-х этажах 93 как.м. На шестом этаже расположены: прихожая, кухня-гостиная с лестницей на верхний этаж, ванная комната, спальня. На втором уровне: две спальни, туалет, гардеробная комната с выходом на 7 этаж. Остановка общественного транспорта в 200 м. В комплексе предусмотрена вся инфраструктура: действующий садик, автостоянка,планируется строительство школы, детского садика. В доме есть кладовки в подвале. В квартире выполнены работы под чистовую отделку:выолнены перегородки, разводка электрики и сантехники, штукатурные работы с устройством шумоизоляции, заливка пола с устройством гидрошумоизоляции, шпаклевка под обои, уложен ламинат . Смонтирована деревянная лестница на 2-ой уровень, облицованы керамической плиткой оба санузла. Квартира оформлена в собственность и согласованы все документы на перепланировку. Получен технический паспорт и акт ввода после перепланировки. Квартира после перепланировки площадью 87,7кв.м зарегистрирована в Росреестре.
Параметры объекта
Тип дома: Монолитный
Кол-во комнат: 4
Этаж: 6
Этажей в доме: 7
Общая площадь: 93 м2
Жилая площадь: 59 м2
Площадь кухни: 23 м2
Расположение на карте
Отзывы
Пока еще никто не оставил отзывОставить отзыв
Хотите сотрудничать и получать заявки? Свяжитесь с нами.
Другие объекты
Жалоба на объявление
Отправить
Принято.
+ Добавить пост
Рекомендуем
Где недорого купить двери в Красногорске? 24 Мая 2020 Сайты по аренде квартир Красногорск 29 Января 2020 Прогрессивный бесплатный сайт по подбору жилья в аренду в Красногорске 14 Ноября 2020 Лучший застройщик Красногорска 26 Декабря 2022 Как снять квартиру в Красногорске на циан на длительный срок без посредников? 30 Января 2020 Сайты недвижимость в Красногорске 4 Февраля 2020 Быстрые знакомства и свидания Красногорск 17 Декабря 2022 Красногорск- отзывы переехавших 2 Июня 2020 Лиды по недвижимости в Красногорске 27 Декабря 2022 Бесплатные сайты посуточной аренды квартир в Красногорске 27 Апреля 2020 Авито знакомства с фото 7 Июня 2023 Помогите советом. Ищу нормальную новостройку в Москве 20 Мая 2020 О беспроводных системах видеонаблюдения для объектов недвижимости 1 Июля 2020 Стоит ли сейчас продавать квартиру 9 Октября 2020 Срочно требуется модератор 5 Мая 2020 У риэлторов по аренде жилья стало меньше работы 27 Сентября 2019 Как снять квартиру без посредников? 19 Января 2020 Как я искала квартиру на авито 29 Ноября 2019 Мошейники ИП Величко С.Б. улица Мира 54,Краснодар 23 Мая 2021 Реальная себестоимость квартир в многоэтажном многоквартирном доме 27 Сентября 2019Наш сайт - бесплатный. Подайте объявление продам или куплю квартиру в Красногорске.









