Квартира, 2-комнатная, 50 м², 1/3
Дагестан, Каспийск, ул Орджоникидзе
| 3 000 000 | рублей |
Пожалуйста, скажите, что нашли это объявление на МаксРиэлт
1 / 3
Описание
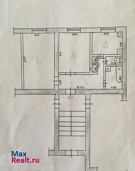
Продам 2х-комнатную квартиру на первом этаже , общей площадью 50кв.м. Идеальный вариант под коммерцию, салон красоты , стоматологию, и прочие варианты. Три окна выходят на городскую площадь. Приобреталась и готовилась именно под коммерцию , внутри частично снесены межкомнатные перегородки, но в связи переездом планы поменялись.
Бартер на участки и авто не предлагать. Можем рассмотреть обмен на готовую квартиру с ремонтом.
Бартер на участки и авто не предлагать. Можем рассмотреть обмен на готовую квартиру с ремонтом.
Параметры объекта
Тип дома: Кирпичный
Кол-во комнат: 2
Этаж: 1
Этажей в доме: 3
Общая площадь: 50 м2
Расположение на карте
Отзывы
Пока еще никто не оставил отзывОставить отзыв
Хотите сотрудничать и получать заявки? Свяжитесь с нами.
Другие объекты
Жалоба на объявление
Отправить
Принято.
+ Добавить пост
Рекомендуем
Каспийск- отзывы переехавших 2 Июня 2020 Аренда жилья в Каспийске с правом выкупа 30 Января 2020 Сколько стоит снять квартиру в Каспийске от хозяев? 28 Января 2020 Недорогой ночлег в Каспийске 24 Января 2020 В Каспийске нет честных риэлторов... 23 Февраля 2020 Как снять квартиру в Каспийске на циан на длительный срок от собственника? 24 Апреля 2020 Терпеть не могу всех посредников из Каспийска 25 Января 2020 Что можно исправить в Каспийске, чтобы жить нормально? 28 Апреля 2020 Совместная аренда жилья в Каспийске 1 Февраля 2020 Квартелия.ру Каспийск: отзывы 12 Февраля 2023 Сниму комнату 14 Апреля 2025 Когда выгонять арендаторов. Совет опытного арендодателя 4 Октября 2019 Мошейники ИП Величко С.Б. улица Мира 54,Краснодар 23 Мая 2021 Как снять квартиру без посредников? 19 Января 2020 О беспроводных системах видеонаблюдения для объектов недвижимости 1 Июля 2020 У риэлторов по аренде жилья стало меньше работы 27 Сентября 2019 Не снимайте квартиру у Костяна 12 Марта 2020 Требуется мужчина для работы у женщины 15 Марта 2023 Помогите советом. Ищу нормальную новостройку в Москве 20 Мая 2020 Авито знакомства с фото 7 Июня 2023 Инвестиции в земельные участки 3 Октября 2019Наш сайт - бесплатный. Подайте объявление продам или куплю квартиру в Каспийске.









