Дом, 130 м², 18.9 сот.
Ульяновская область, село Дмитриево-Помряскино 25 км. до Чердаклы
| 2 750 000 | рублей |
Пожалуйста, скажите, что нашли это объявление на МаксРиэлт
1 / 5
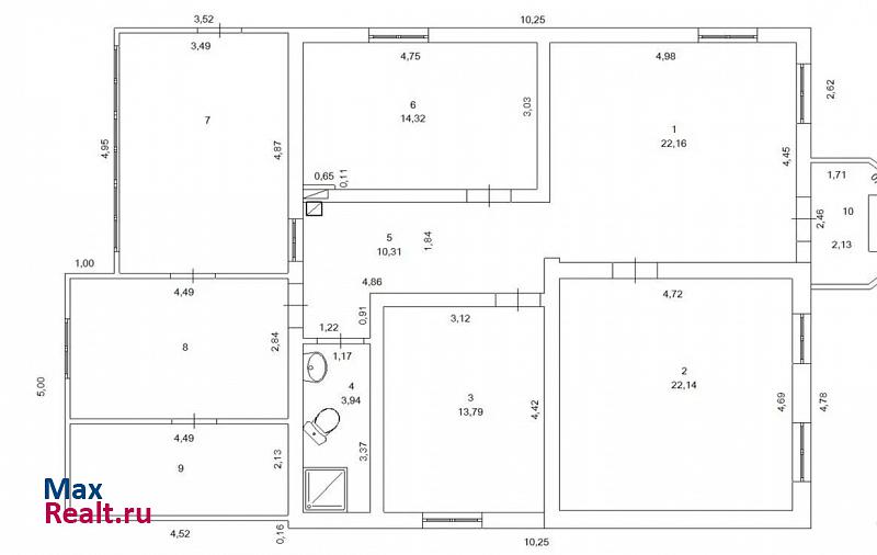
Описание
Продам большой, теплый дом. Комнаты просторные и уютные . В каждой комнате теплый пол. Так же имеется душевая и сан.узел. Шикарная летняя кухня , с видом на лес и речку Урень. Надворные постройки для животных. Баня и большой гараж с смотровой ямой . Торг.уместен. все вопросы отвечу.
Параметры объекта
Материал стен: Кирпич
Этажей в доме: 1
Площадь дома: 130 м2
Площадь участка: 18.9 сот.
Удалённость от города: 25 км
Расположение на карте
Отзывы
Пока еще никто не оставил отзывОставить отзыв
Хотите сотрудничать и получать заявки? Свяжитесь с нами.
Другие объекты
Жалоба на объявление
Отправить
Принято.
+ Добавить пост









