Торговая площадь, 319.7 м²
Саратовская область, Вольск, ул Л.Толстого, 199
| 144 000 | рублей / за всё | |
| Без залога | ||
Пожалуйста, скажите, что нашли это объявление на МаксРиэлт
1 / 5
Описание
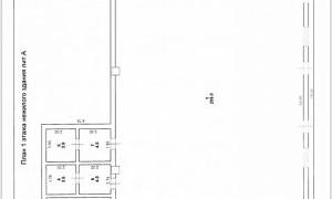
Помещение расположено на первом этаже нежилого здания,введенного в экспулатацию в 2018 г.,кадастровый номер 64:42:010133:122.Площадь 319,7 кв.м.,в том числе торговый зал 290 кв.м.,высота потолка 3,5.Автономное газовое отопление.Разрешенная мощность электроэнергии 50 квт с возможностью увеличения до 150 квт.Удобное расположение в центральной части города напротив центрального рынка.Имеется парковка.Возможна сдача как полностью,так и частями.Земля и здание в собственности физлица,сдается от ИП.Арендная плата 450 р за кв.м.,возможна скидка.Возможна продажа.
Параметры объекта
Площадь: 319.7 м2
Расположение на карте
Отзывы
Пока еще никто не оставил отзывОставить отзыв
Хотите сотрудничать и получать заявки? Свяжитесь с нами.
Другие объекты
Жалоба на объявление
Отправить
Принято.
+ Добавить пост








