Торговая площадь, 95.5 м²
Архангельская область, Архангельск, Октябрьский район, Троицкий проспект, 79
| 57 300 | рублей / за всё | |
| + Залог 1 месяц | ||
Пожалуйста, скажите, что нашли это объявление на МаксРиэлт
1 / 4
Описание
Сдам в аренду помещение в ТЦ Вива на 3 этаже в центре Архангельска на перекрестке проспект Троицкий и улица Попова, первая линия, высокий пешеходный и автомобильный трафик.
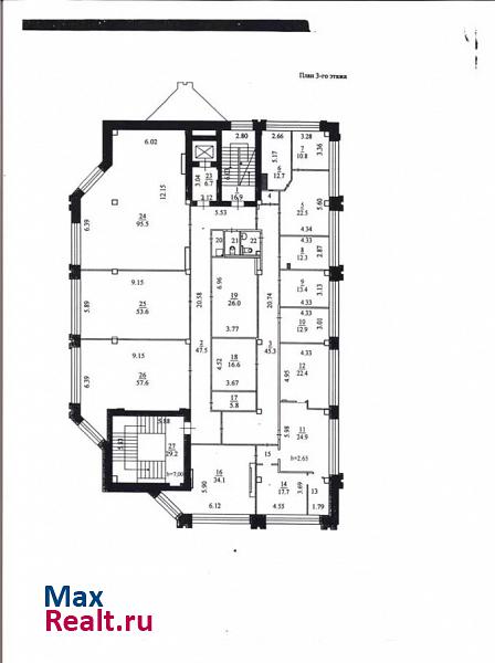
На плане помещение №24 и 25.
Помещение просторное, светлое, в хорошем состоянии, офисная отделка. Есть все необходимые коммуникации – отопление, электричество, телефон, интернет.
Предоставляется место на фасаде для вывески.
В здании есть охранная и пожарная сигнализации, круглосуточное видеонаблюдение. Удобная парковка, рядом остановки общественного транспорта.
Подойдет как для торгового, так и офисного помещения. Без комиссии, от собственника. 600 руб за кв.м.
Есть возможность увеличить площадь до 150 кв.м.!
На плане помещение №24 и 25.
Помещение просторное, светлое, в хорошем состоянии, офисная отделка. Есть все необходимые коммуникации – отопление, электричество, телефон, интернет.
Предоставляется место на фасаде для вывески.
В здании есть охранная и пожарная сигнализации, круглосуточное видеонаблюдение. Удобная парковка, рядом остановки общественного транспорта.
Подойдет как для торгового, так и офисного помещения. Без комиссии, от собственника. 600 руб за кв.м.
Есть возможность увеличить площадь до 150 кв.м.!
Параметры объекта
Площадь: 95.5 м2
Расположение на карте
Отзывы
Пока еще никто не оставил отзывОставить отзыв
Хотите сотрудничать и получать заявки? Свяжитесь с нами.
Другие объекты
Жалоба на объявление
Отправить
Принято.
+ Добавить пост









