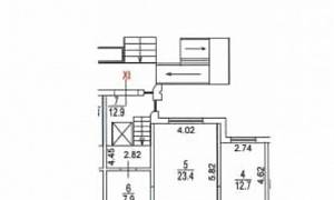
Помещение свободного назначения, 78 м²
Московская область, Москва, метро Молодежная, Вяземская улица, 12к1
| 78 000 | рублей / за всё | |
| + Залог 1 месяц | ||
Пожалуйста, скажите, что нашли это объявление на МаксРиэлт
1 / 5
Описание
Сдаётся помещение свободного назначения на 1-м этаже жилого дома. Вход отдельный, круглосуточный доступ. 1-я линия. Подойдёт под салон красоты, интернет магазин, офис, и тд. Помещение без ремонта. Можем сделать ремонт сами по договоренности. Нюансы обговариваются.
Параметры объекта
Площадь: 78 м2
Расположение на карте
Отзывы
Пока еще никто не оставил отзывОставить отзыв
Хотите сотрудничать и получать заявки? Свяжитесь с нами.
Другие объекты
Жалоба на объявление
Отправить
Принято.
+ Добавить пост









