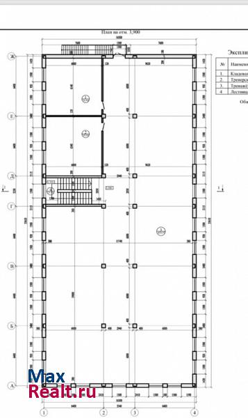
Помещение свободного назначения, 1500 м²
Краснодарский край, Краснодар, Карасунский район, городской округ Краснодар, хутор Ленина, Ореховая улица

18 000 | рублей / за всё | |
+ Залог 1 месяц |
Пожалуйста, скажите, что нашли это объявление на МаксРиэлт

1 / 5
Описание
Новое коммерческое здание в новом хуторе Ленина, фасад на трассу 114 метров, все коммуникации , большая парковка, возможность работы длинномерных фур. Под любой вид деятельности: база, магазин, ресторан, рынок, гостиницу, хостел , фитнес центр и тд. Три этажа, возможность отдельного входа для разных арендаторов. В 5 метрах от здания большой водоём .
Параметры объекта
Площадь: 1500 м2
Расположение на карте
Отзывы
Пока еще никто не оставил отзывОставить отзыв
Хотите сотрудничать и получать заявки? Свяжитесь с нами.
Другие объекты
Жалоба на объявление
Отправить
Принято.
+ Добавить пост