Помещение свободного назначения, 53 м²
Удмуртия, Ижевск, Октябрьский район, улица Коммунаров, 351
| 19 000 | рублей / за всё | |
| + Залог 1 месяц | ||
Пожалуйста, скажите, что нашли это объявление на МаксРиэлт
1 / 4
Описание
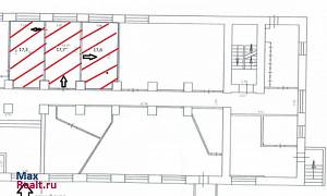
Сдаётся помещение свободного назначения (кол-центр, офис, оптовый склад и т.п.) 53,2 кв. м на 1м этаже жилого здания. Здание приближено к центру деловой активности, расположено на красной линии, пешеходный и транспортный потоки выше среднего. Помещение состоит из 3х комнат. Сделан косметический ремонт. Возможен доп. ремонт за счет аренды (под нужное назначение помещения).
Параметры объекта
Площадь: 53 м2
Расположение на карте
Отзывы
Пока еще никто не оставил отзывОставить отзыв
Хотите сотрудничать и получать заявки? Свяжитесь с нами.
Другие объекты
Жалоба на объявление
Отправить
Принято.
+ Добавить пост









