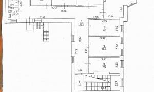
Помещение свободного назначения, 145 м²
Нижегородская область, Городец, улица Кирова, 11
| 8 000 | рублей / за всё | |
| Без залога | ||
Пожалуйста, скажите, что нашли это объявление на МаксРиэлт
1 / 5
Описание
Сдаётся в аренду помещение общей S 145 кв. м., разделенное на несколько изолированных комнат разной площади. Помещение расположено на 2 этаже, в центре города, с большим авто и пешеходный трафиком.
Вход отдельный.
Возможны варианты аренды любой площади.
Идеально подойдёт под офис, салон косметических услуг и другие направления деятельности.
Размещение рекламы на фасаде здания предоставляется.
Цена договорная.
Вход отдельный.
Возможны варианты аренды любой площади.
Идеально подойдёт под офис, салон косметических услуг и другие направления деятельности.
Размещение рекламы на фасаде здания предоставляется.
Цена договорная.
Параметры объекта
Площадь: 145 м2
Расположение на карте
Отзывы
Пока еще никто не оставил отзывОставить отзыв
Хотите сотрудничать и получать заявки? Свяжитесь с нами.
Другие объекты
Жалоба на объявление
Отправить
Принято.
+ Добавить пост






