Помещение свободного назначения, 131 м²
Ленинградская область, Санкт-Петербург, метро Электросила, Благодатная улица, 16к2
| 19 650 000 | рублей / за всё |
Пожалуйста, скажите, что нашли это объявление на МаксРиэлт
1 / 4
Описание
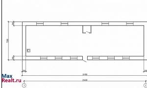
Отдельно стоящее одноэтажное здание внутри жилой застройки. Три входа, 400 метров от м. Электросила. Площадь 131 кв.м. Потолок 3 метра, назначение - нежилое. Мимо проходит пешеходная тропа от метро в спальные районы. Все коммуникациии. Земля под зданием в собственности - 185 кв.м. Есть проект надстройки второго этажа (возможность удвоения площади). Есть арендаторы - Продовольственный и промтоварный магазин. Продается вместе с землей.
Параметры объекта
Площадь: 131 м2
Расположение на карте
Отзывы
Пока еще никто не оставил отзывОставить отзыв
Хотите сотрудничать и получать заявки? Свяжитесь с нами.
Другие объекты
Жалоба на объявление
Отправить
Принято.
+ Добавить пост









