Помещение свободного назначения, 411 м²
Пермский край, Пермь, Мотовилихинский район, улица КИМ, 113
| 10 000 000 | рублей / за всё |
Пожалуйста, скажите, что нашли это объявление на МаксРиэлт
1 / 4
Описание
Продается нежилое помещение, расположенное в густонаселенном районе города Перми (в районе Цирка) с развитой инфраструктурой и отличной транспортной доступностью.
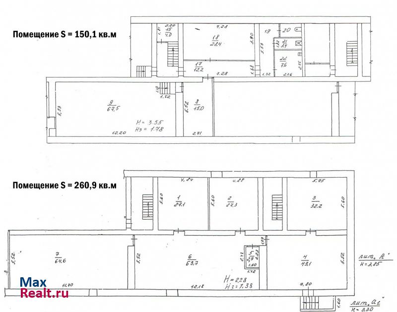
Общая площадь помещения 411 кв.м (состоит из 2-х помещений площадью 150,1 кв.м и 260,9 кв.м).
Находится в подвале 5-и этажного жилого кирпичного дома с административными помещениями.
Два отдельных входа. Высокие потолки. Выполнен ремонт.
Все коммуникации от центральной городской сети.
Общая площадь помещения 411 кв.м (состоит из 2-х помещений площадью 150,1 кв.м и 260,9 кв.м).
Находится в подвале 5-и этажного жилого кирпичного дома с административными помещениями.
Два отдельных входа. Высокие потолки. Выполнен ремонт.
Все коммуникации от центральной городской сети.
Параметры объекта
Площадь: 411 м2
Расположение на карте
Отзывы
Пока еще никто не оставил отзывОставить отзыв
Хотите сотрудничать и получать заявки? Свяжитесь с нами.
Другие объекты
Жалоба на объявление
Отправить
Принято.
+ Добавить пост









