Квартира в новостройке
Саратовская область, Саратов, Октябрьский район, Советская, 9/30
| 5 100 000 | рублей |
Пожалуйста, скажите, что нашли это объявление на МаксРиэлт
1 / 4
Описание
Без отделки.Oкна на две стороны.
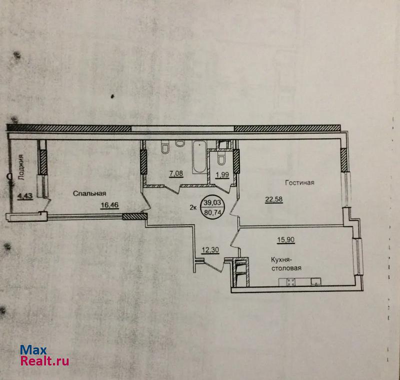
Параметры объекта
Тип дома: Кирпичный
Кол-во комнат: 2
Этаж: 3
Этажей в доме: 10
Общая площадь: 81 м2
Отделка: Без отделки
Расположение на карте
Отзывы
Пока еще никто не оставил отзывОставить отзыв
Хотите сотрудничать и получать заявки? Свяжитесь с нами.
Другие объекты
Жалоба на объявление
Отправить
Принято.
+ Добавить пост









