Квартира в новостройке
Краснодарский край, Краснодар, Прикубанский район, улица им. Героя Яцкова И.В., 17

2 300 000 | рублей |
Пожалуйста, скажите, что нашли это объявление на МаксРиэлт

1 / 3
Описание
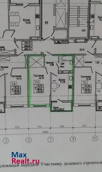
1 кВ Жк губернский , Ул Яцкова 17, 16/18 кирпич , 41 кВ , предчистовая, правильная форма комнаты , цена 2350 т р !!!!!! Любая форма оплаты
Параметры объекта
Застройщик: ООО «СУ-5 «ЮСИ Кубань»
Тип дома: Кирпичный
Кол-во комнат: 1
Этаж: 16
Этажей в доме: 18
Общая площадь: 41 м2
Отделка: Чистовая
Расположение на карте
Отзывы
Пока еще никто не оставил отзывОставить отзыв
Хотите сотрудничать и получать заявки? Свяжитесь с нами.
Другие объекты
Жалоба на объявление
Отправить
Принято.
+ Добавить пост