Квартира, 2-комнатная, 48 м², 2/5
Курская область, Курск, Центральный район, улица Блинова, 9/11
| 3 000 000 | рублей |
Пожалуйста, скажите, что нашли это объявление на МаксРиэлт
1 / 2
Описание
Продам или обменяю двухкомнатную квартиру в центре города, в 100 метрах от ул. Ленина, на тихой зеленой улице.
В радиусе 100 метров находятся: Юго-Западный госуниверситет, 44-я гимназия, Парк пионеров, ТЮЗ, филармония, почта, аптека, "Пятерочка", парикмахерская, овощной магазин, лиственная аллея, художественно-графический факультет КГУ, 4 кафе. В радиусе 200 метров: Медицинский университет, педагогический колледж, банк, остановки всех видов общественного транспорта, Северный рынок, торгово-развлекательный центр "Central Park", медицинский центр, различные продуктовые и промтоварные магазины. В радиусе 300 метров: ТЦ "Европа", городская стоматология, Пенсионный фонд, Кооперативный университет и колледж при нем, швейное ателье, Новый рынок и разные магазины.
Двор дома - непроезжий, тихий, зеленый, безопасный для детей.
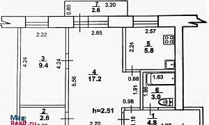
Дом - из красного кирпича, облицован белым кирпичом. Окна квартиры выходят на запад. Квартира - не угловая. Площадь - 45 кв.м + балкон 3м, жилая - 30 кв.м. Одна комната - проходная; есть возможность легко сделать ее изолированной. Спальня увеличена засчет кладовой, но при желании кладовую легко восстановить.
Пол в квартире - натуральный дубовый паркет (не ламинат). Имеется собственный подвал. Балкон недавно остеклен ПВХ, каждое окно открывается, в том числе и боковые: удобно мыть, в каждом окне есть вставная сетка. Горячее водоснабжение - централизованное. Отопление - центральное, топят хорошо; квартира - очень теплая и сухая. Есть газ. Перебоев ни с холодной, ни с горячей водой нет. В квартиру проведен интернет. Ремонт в квартире - обычный: можно въезжать и жить.
Возможен вариант обмена на двух- или трехкомнатную квартиру, не требующую ремонтно-отделочных работ и в которой никто не жил.
В радиусе 100 метров находятся: Юго-Западный госуниверситет, 44-я гимназия, Парк пионеров, ТЮЗ, филармония, почта, аптека, "Пятерочка", парикмахерская, овощной магазин, лиственная аллея, художественно-графический факультет КГУ, 4 кафе. В радиусе 200 метров: Медицинский университет, педагогический колледж, банк, остановки всех видов общественного транспорта, Северный рынок, торгово-развлекательный центр "Central Park", медицинский центр, различные продуктовые и промтоварные магазины. В радиусе 300 метров: ТЦ "Европа", городская стоматология, Пенсионный фонд, Кооперативный университет и колледж при нем, швейное ателье, Новый рынок и разные магазины.
Двор дома - непроезжий, тихий, зеленый, безопасный для детей.
Дом - из красного кирпича, облицован белым кирпичом. Окна квартиры выходят на запад. Квартира - не угловая. Площадь - 45 кв.м + балкон 3м, жилая - 30 кв.м. Одна комната - проходная; есть возможность легко сделать ее изолированной. Спальня увеличена засчет кладовой, но при желании кладовую легко восстановить.
Пол в квартире - натуральный дубовый паркет (не ламинат). Имеется собственный подвал. Балкон недавно остеклен ПВХ, каждое окно открывается, в том числе и боковые: удобно мыть, в каждом окне есть вставная сетка. Горячее водоснабжение - централизованное. Отопление - центральное, топят хорошо; квартира - очень теплая и сухая. Есть газ. Перебоев ни с холодной, ни с горячей водой нет. В квартиру проведен интернет. Ремонт в квартире - обычный: можно въезжать и жить.
Возможен вариант обмена на двух- или трехкомнатную квартиру, не требующую ремонтно-отделочных работ и в которой никто не жил.
Параметры объекта
Тип дома: Кирпичный
Кол-во комнат: 2
Этаж: 2
Этажей в доме: 5
Общая площадь: 48 м2
Жилая площадь: 30 м2
Площадь кухни: 6 м2
Расположение на карте
Отзывы
Пока еще никто не оставил отзывОставить отзыв
Хотите сотрудничать и получать заявки? Свяжитесь с нами.
Другие объекты
Жалоба на объявление
Отправить
Принято.
+ Добавить пост
Рекомендуем
Лиды по недвижимости в Курске 13 Января 2023 Снять квартиру в Курске на авито на длительный срок от собственников 2 Февраля 2020 Что следовало бы изменить в Курске, для того чтобы жить и работать было хорошо? 1 Мая 2020 Совместная аренда жилья в Курске 18 Февраля 2020 Аренда квартир в Курске с последующим выкупом 22 Января 2020 Технологичный удобный сайт по аренде квартир в Курске 14 Ноября 2020 Хорошая реклама посуточных квартир в Курске 16 Января 2020 В Курске нет добросовестных агентств недвижимости. 1 Мая 2020 Крайне не люблю риэлторов и посредников из Курска 24 Января 2020 Отзывы об авито недвижимость Курск 6 Марта 2020 Проживание рабочих в Курске 23 Сентября 2025 Срочно требуется модератор 5 Мая 2020 Наглые риэлторы 18 Февраля 2020 Как снять квартиру без посредников? 19 Января 2020 Требуется мужчина для работы у женщины 15 Марта 2023 Самые популярные дома в строительстве 2020 года 9 Апреля 2021 Помогите советом. Ищу нормальную новостройку в Москве 20 Мая 2020 О беспроводных системах видеонаблюдения для объектов недвижимости 1 Июля 2020 Авито знакомства с фото 7 Июня 2023 Евгений 9773334216 1 Декабря 2020 Мошейники ИП Величко С.Б. улица Мира 54,Краснодар 23 Мая 2021Наш сайт - бесплатный. Подайте объявление продам или куплю квартиру в Курске.









