Дом, 145 м², 8 сот.
Московская область, Нахабино 17 км. до Москвы
| 6 000 000 | рублей |
Пожалуйста, скажите, что нашли это объявление на МаксРиэлт
1 / 5
Описание
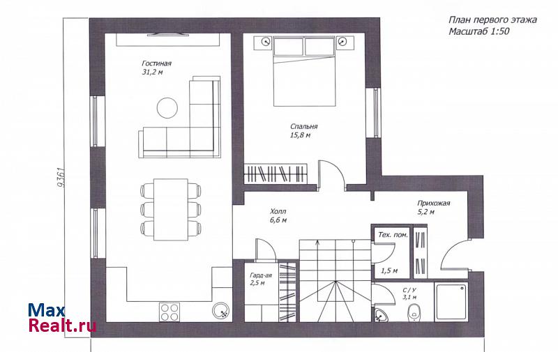
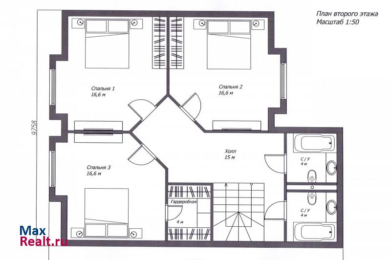
Продается дом в Нахабино -10 минут пешком от станции Малиновка.Внимание 21.11.19. открылось лёгкое метро!"Нахабино". В пешей доступности вся инфраструктура, детский сад, школа, магазины. На участке выполнены разноуровневые ландшафтные работы, обустроенны лестницы, дорожки, есть газон, плодовые деревья и кустарники. В доме свет, вода (колодец) канализация (септик), газ по границе. Дом 145 метров, под чистовую отделку, все перекрытия бетонные, фасад в идеальном состоянии. Потрясающий вид на лес и реку. Удобный подъезд к дому. Срочно!
Параметры объекта
Материал стен: Ж/б панели
Этажей в доме: 2
Площадь дома: 145 м2
Площадь участка: 8 сот.
Удалённость от города: 17 км
Расположение на карте
Отзывы
Пока еще никто не оставил отзывОставить отзыв
Хотите сотрудничать и получать заявки? Свяжитесь с нами.
Другие объекты
Жалоба на объявление
Отправить
Принято.
+ Добавить пост









